Projekte
Büro
Wohnhaus CWI
Kontakt

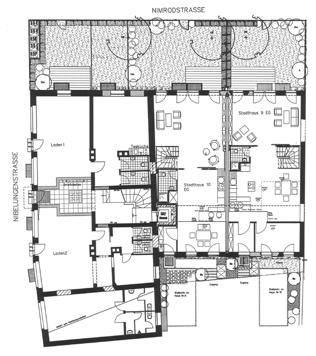
Grundriss EG