Projekte
Büro
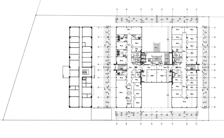
Bürogebäude Soller
Kontakt

Grundriss 1.OG