Projekte
Büro
Bürogebäude Soller
Kontakt

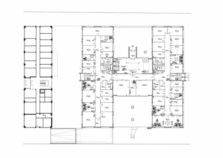
Grundriß EG